1 Duggan Ave, Mangere
Starting from $659K


Perfect Homes for Families in Mangere
Welcome to a boutique collection of seven thoughtfully designed homes, each crafted to suit the diverse needs of modern living. This exceptional project combines style, functionality, and comfort with unique layouts tailored for every lifestyle.
For families seeking spacious, contemporary living, our three 3-bedroom homes offer 3 bathrooms, a study, and a secure car park, the ultimate setup for today’s dynamic households.
Five 2-bedroom homes are perfect for small families or professionals, featuring 1.5 bathrooms and low-maintenance living, ideal for those who value simplicity without compromising on quality.
Located in the heart of Mangere, a family-friendly Auckland suburb, these homes provide the perfect balance of suburban charm and urban convenience.
Experience secure, stylish, and convenient living, the perfect place to call home.
Amenities
- Butterfly Creek 8 min away
- Mangere Town Centre 3 min away
- Otahuhu Shopping Centre 8 min away
- Woolworths Mangere Mall 4 min away
- Middlemore Hospital 9 min away
- SH1 10 min away
- Rainbows End 12 min away
- Puhinui Train Station 9 min away
- Auckland International Airport 10 min away
Siteplan

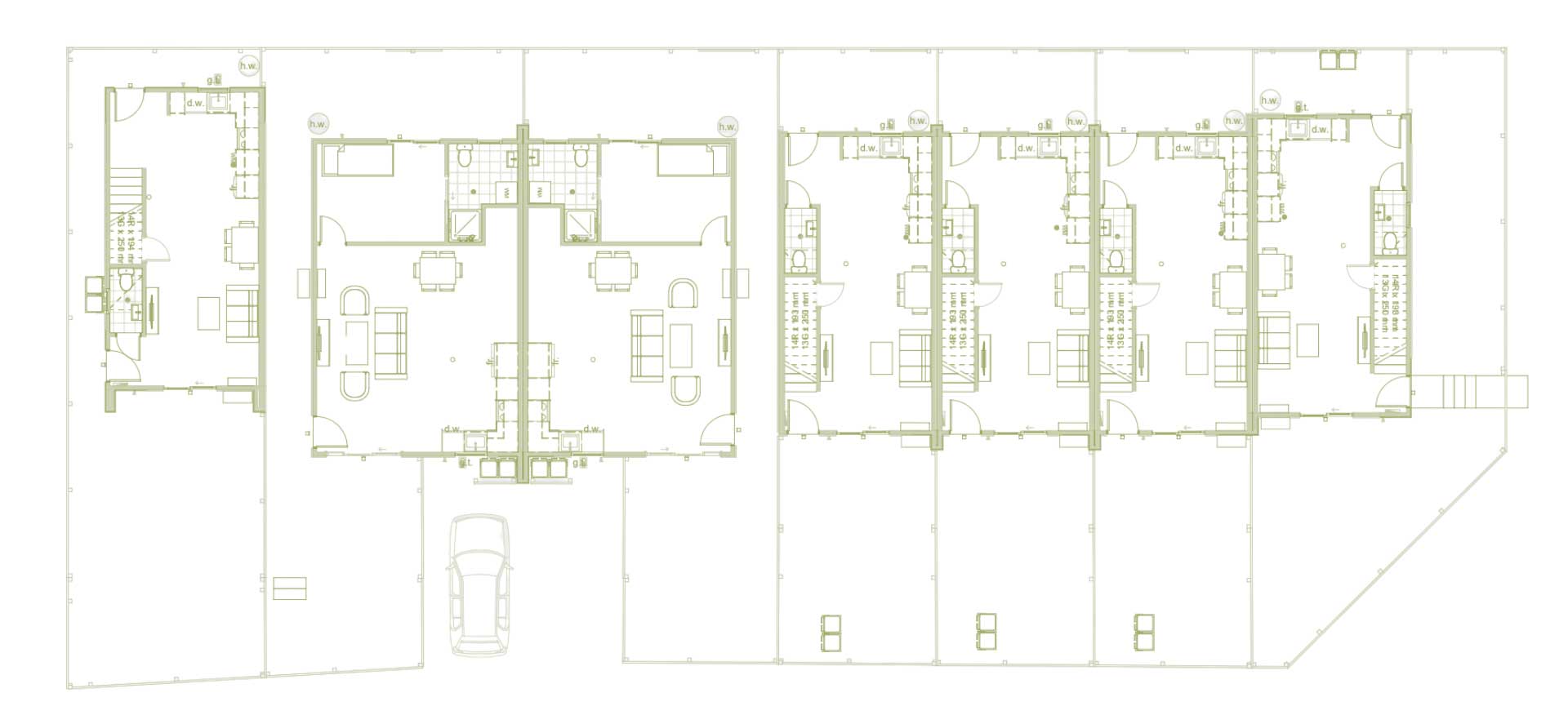
Floor Plans

- Average floor area 77 Sq.ft
- Bedroom 2
- Bathroom 1.5

- Average floor area 111.55 Sq.ft
- Bedroom 3
- Bathroom 3

- Average floor area 75.86 Sq.ft
- Bedroom 2
- Bathroom 1.5
Exteriors
Linea Oblique Weatherboard or similar: Coated in Resene Iron Sand, offering a bold and modern look.
Bevelback Weatherboard / Line Weatherboard or similar: Finished in the clean, crisp Resene Black White.
Exterior Brick: Styled with Midland Bricks (Euro Ceres) or similar for a contemporary, elegant appearance.
Roof Material: Durable Long Run Colorsteel in a striking Ebony or similar black finish.
Fascia: Modern metal fascia in a sleek black finish or similar for a clean, cohesive exterior aesthetic.
Interiors
Waterproofing: Premium Mapei Aquadefence or similar ensures superior protection against moisture.
Walls & Ceilings: Walls feature Resene Decorator LowSheen in a timeless Sea Fog shade or similar, creating a calming atmosphere.
Ceilings are painted with Resene Hi-op Easy Touch Flat in Black White or similar, offering a seamless, refined look.
Trim and frames are enhanced with Resene Lustacryl Semi-Gloss in Black White or similar for a polished finish.
Bathrooms & Kitchens: Designed with moisture-resistant Resene SpaceCote Low Sheen or similar paint for lasting durability.
Windows & Glazing: Sleek aluminium windows with triple glazing or similar ensure enhanced insulation, soundproofing, and energy efficiency.
Intertenancy Walls: Built with the Gib Barrier Line System or similar, delivering excellent soundproofing and fire resistance between homes.
Insulation: Walls are equipped with high performance insulation like Earthwool, Pink Batts, or Knauf or similar, ensuring your home stays comfortable year round.
Enquire Now
Download full information pack to get complete overview of the project.